Používame cookies

Súbory cookie a ďalšie technológie sledovania používame na zlepšenie vášho zážitku z prehliadania našich webových stránok, na to, aby sme vám zobrazovali prispôsobený obsah a cielené reklamy, na analýzu návštevnosti našich webových stránok a na pochopenie toho, odkiaľ naši návštevníci prichádzajú. Viac info

 

Priestranný 2-iz byt (72 m²) s potenciálom na 3 iz.

Interné ID: SVE60415JB
Ulica: Komenského
Mestská časť: Centrum
Obec: Snina
Okres: Snina
Kraj: Prešovský kraj
Druh: Byty
Typ: Predaj
Typ bytu: 2-izbový byt
72 900 €

Popis nehnuteľnosti

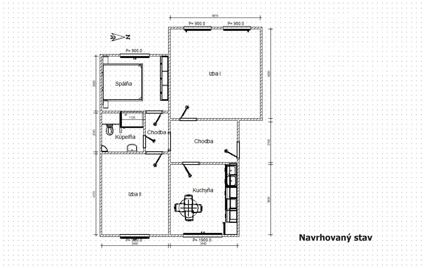
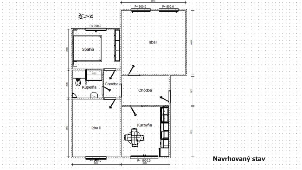
V Snine, na sídlisku Komeského ponúkame na predaj priestranný 2-izbový byt o výmere 72 m², nachádzajúci sa na prízemí zrekonštruovaného panelového bytového domu.

Byt je v pôvodnom stave, čo predstavuje ideálnu príležitosť prispôsobiť si bývanie podľa vlastných predstáv alebo investične zhodnotiť nehnuteľnosť. Dispozícia zahŕňa predsieň, vstupnú chodbu, dve obytné izby, kuchyňu a priestrannú kúpeľňu s WC.

Veľkou výhodou je rozmerná izba (4,62 m x 4,62 m), ktorú je možné jednoducho rozdeliť a získať tak plnohodnotný 3-izbový byt – čo výrazne zvyšuje hodnotu nehnuteľnosti.

Byt je bezbariérový a nachádza sa na prízemí, čo ocenia najmä rodiny s deťmi alebo starší ľudia.

Sídlisko Komenského patrí medzi najobľúbenejšie a najmladšie lokality v meste. V bezprostrednom okolí je kompletná občianska vybavenosť – školy, škôlky, obchody (Tesco, Billa, Lidl), služby, kaviarne aj reštaurácie.

Kľúčové benefity:

* veľkorysá výmera 72 m²

* možnosť prerobenia na 3-izbový byt

* prízemie a bezbariérový prístup

* top lokalita v rámci mesta

* kompletná občianska vybavenosť

Prvé obhliadky sú už v piatok 17.4.2026

Vlastnosti

Status:
aktívne
Vlastníctvo:
osobné
Úžitková plocha:
72 m2
Stav:
pôvodný stav
Status:
aktívne
Vlastníctvo:
osobné
Úžitková plocha:
72 m2
Stav:
pôvodný stav

Informatívna úverová kalkulačka

Pozrieť na mape

Maklér

Jaroslav Bodnár

Jaroslav Bodnár

Maklér pre Sninu a Humenné

  • Česky
  • Slovensky
  • Pусский
  • Українська
  • sora
  • lrm

Radi Vám poradíme

Podobné nehnuteľnosti